Dvosoban stan 3. kat A308S površine 43.32m2 u novogradnji, na lokaciji Utinjska 2A, Sveta Klara u Novom Zagrebu.
- Dvosoban
- 43.32m2
- Na upit
dostupno
Otkrijte savršen spoj suvremene arhitekture, kvalitetne izgradnje i promišljenog dizajna u novom projektu KLARA home. Smješten u brzo rastućem kvartu Sveta Klara, ovaj stambeni kompleks nudi idealnu ravnotežu mira i urbanog života.
Prikaz površina
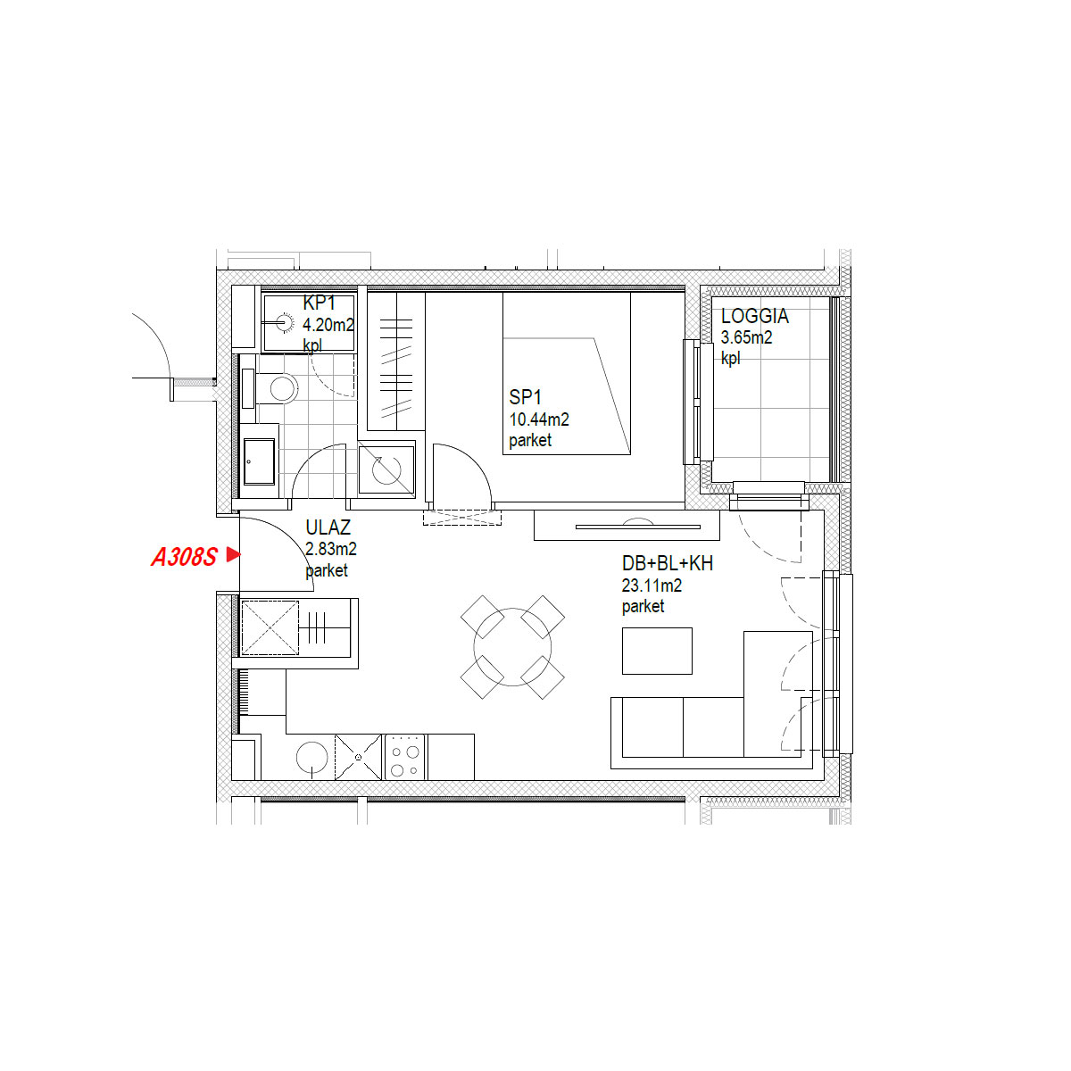
Dvosoban stan 3. kat A308S
| STAN / PROSTORIJA | NETO POVRŠINA (M2) | NETO OBRAČUNATA POVRŠINA (M2) | ||
| 1 | ULAZ | 2.83 | 2.83 | |
| 2 | DNEV. BORAVAK + BLAG. + KUHINJA | 23.11 | 23.11 | |
| 3 | SOBA 1 | 10.44 | 10.44 | |
| 4 | KUPAONICA | 4.20 | 4.20 | |
| - | UKUPNO ZATVORENI PROSTOR | 40.58 | 40.58 | |
| 5 | LOGGIA | 3.65 | 2.74 | |
| - | STAN UKUPNO | 44.23 | 43.32 |
Zainteresirani?
Pošaljite upit za Stan A308S
Izbornik
Copyright © 2024 Klara-home.hr
NA VRH


